Stuttgart:
Schicke 4 Raumwohnung in Bad-Cannstatt sucht neue Bewohner!
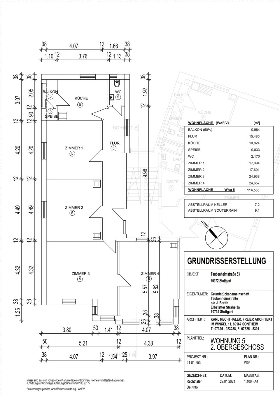
Objekt-Nr.: Ta53_4RWE_2.OGlinks

Ansicht Haus

Hausflur

Flur (3)

Flur (2)

Zimmer 3 (2)

Zimmer 3 (1)

Zimmer 4 (1)

Bad

Vorratskammer

Zimmer 1

Zimmer 4 (3)

Zimmer 2

Flur (4)

Zimmer 4 (2)


Ausblick (3)

Ausblick (2)

Ausblick (1)

Ausblick Küche



















mtl. Kaltmiete:
1.650 €
Wohnfläche ca.:
114,59 m²
Zimmeranzahl:
4
Großzügig geschnittene 4 Raumwohnung in einem Mehrfamilienhaus in Bad Cannstatt.
Von der Wohnung aus können Sie das Grabmal von Gottlieb Daimler sehen. Ebenfalls haben Sie eine wunderbare Aussicht auf den Uff-Kirchhof.
Wohnungstyp: Etagenwohnung
Etage: 3
Etagenanzahl: 5
Nebenkosten: 150 €
Kaution / Genossenschaftsanteile: 4950,00 €
Heizkosten: sind nicht in den Nebenkosten enthalten
Provisionspflichtig: nein
Bad: Dusche, Fenster
Anzahl Schlafzimmer: 3
Anzahl Badezimmer: 1
Balkon: 1
Keller: ja
Umgebung: Bahnhof, Einkaufsmöglichkeit, Krankenhaus
Möbliert: nein
Haustiere: nach Vereinbarung
Qualität der Ausstattung: gehoben
Baujahr: 1903
Bezugsfrei ab: nach Absprache
Bodenbelag: Dielen, Fliesen
Zustand: gepflegt
Heizung: Etagenheizung
Befeuerungsart: Gas
Energieausweistyp: Bedarfsausweis - gültig vom 16.06.2019 bis 16.06.2029
Baujahr laut Energieausweis: 1903
Die von uns gemachten Informationen beruhen auf Angaben des Eigentümers bzw. der Eigentümerin. Für die Richtigkeit und Vollständigkeit der Angaben kann keine Gewähr bzw. Haftung übernommen werden. Eine Zwischenvermietung und Irrtümer sind vorbehalten.
Wir weisen auf unsere Allgemeinen Geschäftsbedingungen hin. Durch weitere Inanspruchnahme unserer Leistungen erklären Sie die Kenntnis und Ihr Einverständnis.
Das könnte Ihnen auch gefallen



























